それぞれのライフスタイルを暮らしに詰め込める、
住まいづくりの新発想「ZERO-CUBE+FUN」。
自由にセレクトして、我が家だけの住み心地を
コーディネートしてください。
+BOXの楽しみ方は自由自在。
家族構成やライフスタイルに合わせてBOXをプラスすれば、マイホームの「あったらいいな」がカタチになります。
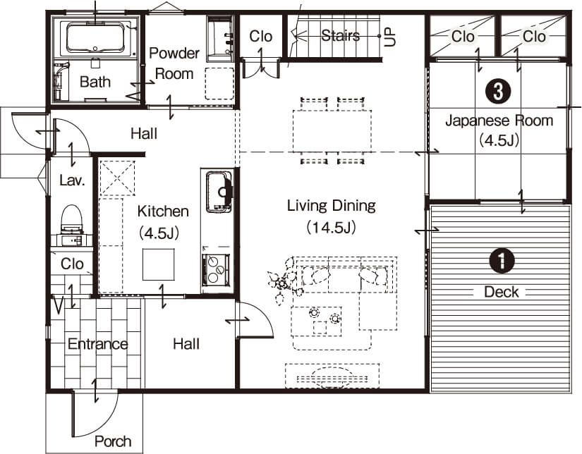
休日に家族でバーベキューが楽しめるウッドデッキ、客間として、また子どもとのふれあいスペースとして活用できる和室など、スタイルは自由自在。
Point
特徴
-
Japanese Room
-
Deck
-
Roof Balcony
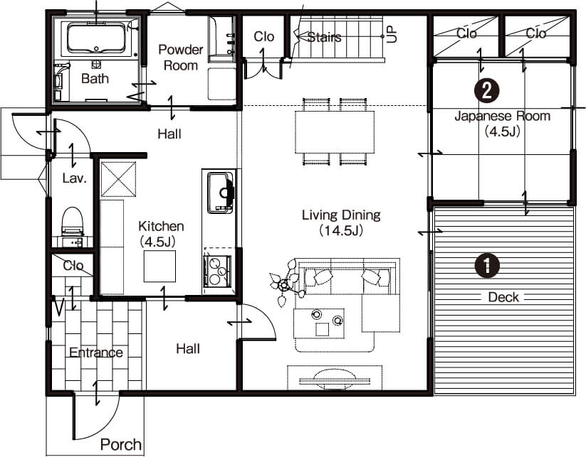
3LDKが広々5LDKに大変身
異なる使い方の2つのBOXを積み重ねて、それぞれを自分流にアレンジできる+FUNです。
1階の和室は、寝室や客間、リビングの一部として機能。2階のFREE ROOMは、独立性が高く、寝室はもちろん書斎や趣味室などに最適です。
Point
特徴
-
Japanese Room
-
Free Room
-
Deck
色や形や素材感で空間をデザイン。
選ぶ家具によってマイホームも表情豊かに。
※掲載の写真・CGパースは当社の施工例及び図面を基に書き起こしたもので実際とは異なります。一部オプションを含みます。
※家具・調度品・電化製品・植樹等は含まれておりません。また、価格は2025年3月現在の価格であり、変更になる場合がございます。予めご了承ください。

















