こんどの週末は、どこに出かけようか?
クルマ好き、アウトドア派もガレージから広がる趣味の暮らし。
Concept
ガレージとわが家を一体化し
暮らしをカスタマイズする。
愛車をゆとりある空間で保管できる屋内ガレージは、
クルマのコンディションを保つと共にセキュリティ面でも安心。
2階に新しく出現したのが、ガレージ上のワイドなバルコニー。
各居室の収納性も高く、大型品はガレージに収納できるため、
すっきり美しい暮らしが始まります。
Point
特徴
-
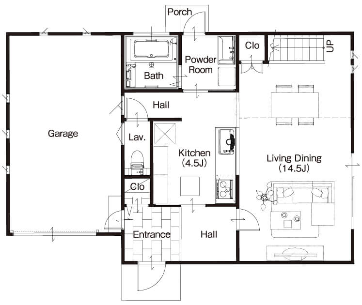
Garage
-
Roof Balcony
色や形や素材感で空間をデザイン。
選ぶ家具によってマイホームも表情豊かに。
※掲載の写真・CGパースは当社の施工例及び図面を基に書き起こしたもので実際とは異なります。一部オプションを含みます。
※家具・調度品・電化製品・植樹等は含まれておりません。また、価格は2025年3月現在の価格であり、変更になる場合がございます。予めご了承ください。















